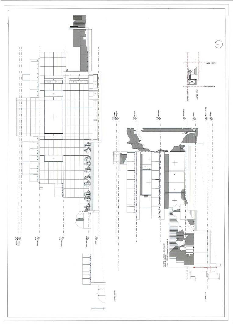
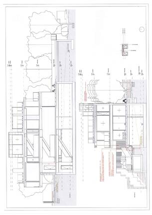
Grundrisse
Marbesa, Marbella Ost · W-02ZYC2

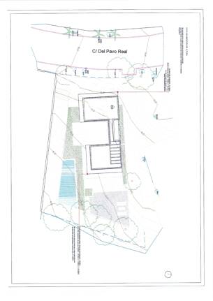
Grundstück in Marbesa mit Meerblick und Baugenehmigung

2.400.000 € Mehr Informationen anfordern
Annehmlichkeiten und Besonderheiten dieser Immobilie

Gelegenheit, ein 776 m² großes Baugrundstück auf der Strandseite von Marbesa, einem ruhigen Wohngebiet nur 10 Minuten von Marbella entfernt, zu erwerben. Eingebettet in eine ruhige und begehrte Nachbarschaft, nur einen kurzen Spaziergang vom Strand entfernt, bietet dieses Grundstück den perfekten Rahmen, um Ihr Traumhaus zu schaffen.
Mit einer Bebauungsdichte von 23% und einer Belegungsdichte von 30% erlaubt das Grundstück eine beeindruckende moderne Villa mit Meerblick von der oberen Etage. Die Baugenehmigung ist erteilt, ein guter Start für Ihre Baureise.

Diese im Bau befindliche Immobilie ist eine großartige Gelegenheit, da Sie neben einer neuen Immobilie auch die Möglichkeit haben, sie während des Bauprozesses zu personalisieren und so das Zuhause zu schaffen, das Sie schon immer gesucht haben. Die Fertigstellung der Bauarbeiten wird auf 14 Monate geschätzt, im letzten Quartal des Jahres 2026.

Besondere Merkmale

  • Annehmlichkeiten nahebei
  • Meer/Strandnähe
  • Meerblick
  • Nähe Einkaufsmöglichkeiten
  • Nähe Ortszentrum
  • Strandseite

Der Verkaufspreis enthält keine Kosten oder Steuern. Zusätzliche Kosten für den Käufer: Einschreibe- und Notargebühren, ITP 7 % oder alternativ 10 % MwSt. und AJD 1,2 % des Kaufpreises) bei neuen Immobilien und vorbehaltlich einiger zu erfüllender Voraussetzungen. Diese Informationen sind vorbehaltlich von Fehlern, Auslassungen, Änderungen, Vorverkauf oder Rückzug vom Markt. Informationsblatt verfügbar, Dekret 218/2005 11. Oktober.

Kontaktieren Sie uns für weitere Angaben zu dieser Immobilie.
  • Grundstück 776 m²
Verantwortlicher Shop Engel & Völkers Elviria Anfahrtsbeschreibung +34 952 83 55 80
Name erforderlich
Email erforderlich
Telefon erforderlich
Erforderliches Feld
Property Contact Image

Lesen Sie mehr über das Gebiet

Marbesa

Marbesa ist eine begehrte Wohngegend im östlichen Teil von Marbella, eingebettet an der Costa del Sol in Spanien. Es ist ein beliebtes Reiseziel für Touristen und Auswanderer und bekannt für seine malerischen Strände, Naturparks und Golfplätze.

Marbesa Marbella

Ähnliche Immobilien zum Verkauf in Marbesa und Marbella Ost und Marbella (Alle Gebiete)

Diese Immobilien könnten Sie auch interessieren

Mehr Immobilien zum Verkauf in Marbesa, Marbella Ost, Marbella (Alle Gebiete)

Entdecken Sie die neuesten Immobilien, die in Marbella auf den Markt gekommen sind

Neue Angebote