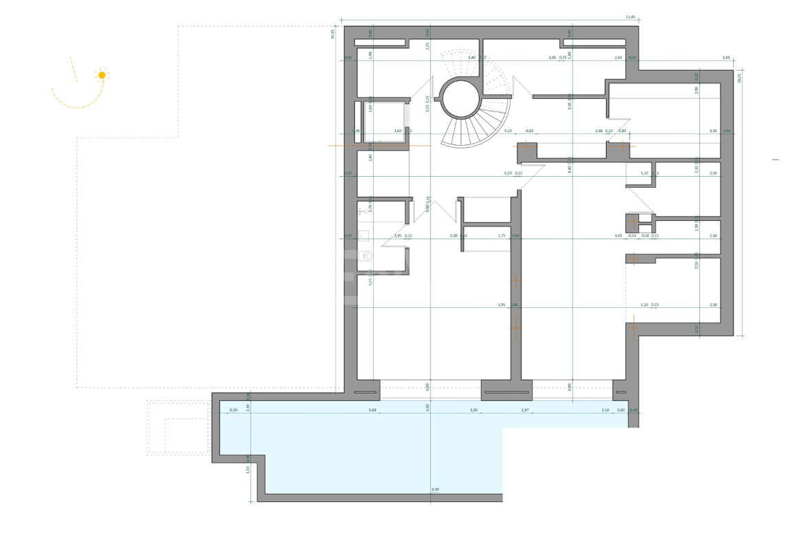
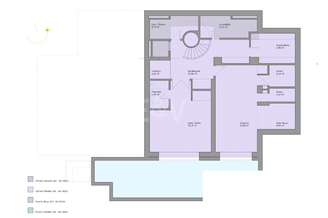
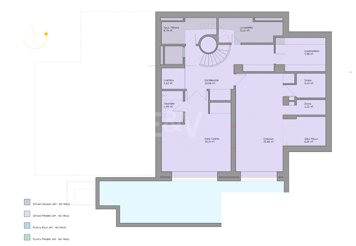
Grundrisse
Elviria, Marbella Ost · W-02XPW9

Moderne Villa mit Panoramablick auf Meer und Berge - Grundstück und Projekt mit garantierter Baugenehmigung

950.000 € Mehr Informationen anfordern
Annehmlichkeiten und Besonderheiten dieser Immobilie

Eine seltene Gelegenheit in einer der begehrtesten Wohngegenden von Marbella. Dieses erhöhte Grundstück in Elviria bietet einen Panoramablick auf das Meer und verfügt über eine vollständig genehmigte Baugenehmigung, die einen sofortigen Baubeginn ermöglicht.

Das Grundstück erlaubt eine bebaubare Fläche von 310 m², mit einer maximalen Gebäudehöhe von 7 Metern und maximal 2 Etagen, was es ideal für eine anspruchsvolle zeitgenössische Villa macht.

Das genehmigte Projekt umfasst eine beeindruckende moderne Luxusvilla mit 5 Schlafzimmern, die durchdacht gestaltet wurde, um schlanke Architektur mit mediterranem Wohnkomfort zu verbinden. Große bodentiefe Fenster maximieren das natürliche Licht und rahmen die atemberaubende Küstenlandschaft perfekt ein, während offene Innenräume eine nahtlose Verbindung zwischen Innen- und Außenbereichen gewährleisten – ideal sowohl für das tägliche Leben als auch für Unterhaltungszwecke.

Verpassen Sie nicht diese außergewöhnliche Gelegenheit in Elviria. Kontaktieren Sie uns für vollständige Details und Dokumentation.

Besondere Merkmale

  • Meerblick

Der Verkaufspreis enthält keine Kosten oder Steuern. Zusätzliche Kosten für den Käufer: Einschreibe- und Notargebühren, ITP 7 % oder alternativ 10 % MwSt. und AJD 1,2 % des Kaufpreises) bei neuen Immobilien und vorbehaltlich einiger zu erfüllender Voraussetzungen. Diese Informationen sind vorbehaltlich von Fehlern, Auslassungen, Änderungen, Vorverkauf oder Rückzug vom Markt. Informationsblatt verfügbar, Dekret 218/2005 11. Oktober.

Kontaktieren Sie uns für weitere Angaben zu dieser Immobilie.
  • Grundstück 1.032 m²
Verantwortlicher Shop Engel & Völkers Elviria Anfahrtsbeschreibung +34 952 83 55 80
Name erforderlich
Email erforderlich
Telefon erforderlich
Erforderliches Feld
Property Contact Image

Lesen Sie mehr über das Gebiet

Elviria

Elviria ist berühmt für seine erstklassigen Immobilien, seine beeindruckende Naturkulisse und seine wunderschönen Strände. Die Gegend bietet eine Reihe luxuriöser Unterkunftsmöglichkeiten, darunter Villen, Stadthäuser und Apartments, von denen viele einen atemberaubenden Blick auf das Mittelmeer bieten.

Elviria Marbella

Ähnliche Immobilien zum Verkauf in Elviria und Marbella Ost und Marbella (Alle Gebiete)

Diese Immobilien könnten Sie auch interessieren

Mehr Immobilien zum Verkauf in Elviria, Marbella Ost, Marbella (Alle Gebiete)

Entdecken Sie die neuesten Immobilien, die in Marbella auf den Markt gekommen sind

Neue Angebote