Elviria, Marbella Est · W-0475C2

Terrain avec vue en Elviria

549 000 € Demander plus d'informations
Aménagements et caractéristiques particulières de ce bien

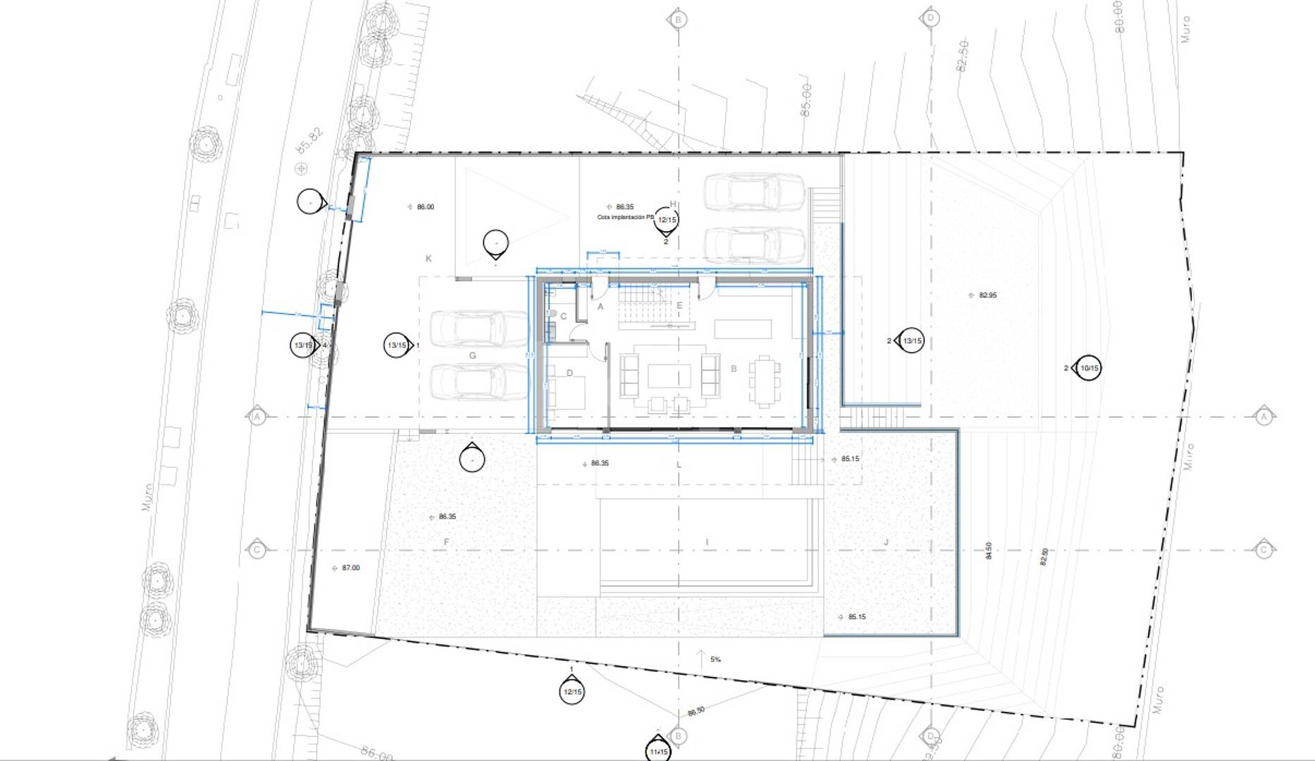
Cette villa moderne de 4 chambres, 3 salles de bains à Elviria, Marbella offre 208m2 d’espace de vie luxueux sur un terrain spacieux de 1042m2. Conçue avec une touche contemporaine, cette propriété de 2 niveaux assure la lumière naturelle et la ventilation dans chaque pièce. En entrant, vous trouverez un hall d’entrée spacieux menant au salon spacieux relié à une cuisine ouverte avec une île intégrée. Les fenêtres au plafond donnent accès à la piscine et au jardin. Une toilette est idéalement située au rez-de-chaussée. Le salon offre une vue imprenable sur la Costa del Sol, créant une atmosphère enchanteresse. L’étage supérieur dispose de deux chambres généreuses avec un grand rangement, partageant une salle de bains bien aménagée. La chambre principale dispose d’une salle de bains privative et d’un grand dressing. Accédez à la terrasse du toit depuis le premier étage, pré-équipée pour les panneaux solaires, reflétant les pratiques modernes de durabilité. Cette villa allie style, fonctionnalité et éco-conscience. En plein air, profitez de terrasses couvertes, d’une piscine privée, d’un jardin paysager et d’un parking privé pour deux voitures reliées à la villa. La demande de permis de construire a été présentée en mars 2023 et devrait être approuvée prochainement. Personnalisez le projet en ajoutant un sous-sol complet avec des possibilités passionnantes. Cette villa hors plan est votre chance de créer votre maison idéale à Marbella, adaptée à vos préférences et votre style de vie. Contactez-nous pour visiter cette propriété exceptionnelle plus loin.

Détails de l'inscription

  • Vue mer
  • Vue montagne
  • Vue panoramique

Le prix de vente ne comprend pas les frais et les taxes. Frais supplémentaires pour l'acheteur : frais d'inscription et de notaire, ITP 7% ou, alternativement, 10% de TVA et AJD 1,2% sur le prix d'achat) sur les nouvelles propriétés et sous réserve de certaines conditions à remplir. Ces informations sont données sous réserve d'erreurs, d'omissions, de modifications, de vente préalable ou de retrait du marché. Fiche d'information disponible, décret 218/2005 du 11 octobre.

Contactez nous pour plus de détails sur cette propriété
  • Tracé 1 042 m²
Boutique responsable Engel & Völkers Elviria Obtenir des indications +34 952 83 55 80
Nom requis
Email requis
Téléphone requis
Champ obligatoire
Property Contact Image

En savoir plus sur la région

Elviria

Elviria est célèbre pour ses propriétés haut de gamme, ses paysages naturels saisissants et ses belles plages. La région propose une gamme d’options d’hébergement de luxe, notamment des villas, des maisons de ville et des appartements, dont beaucoup offrent une vue imprenable sur la mer Méditerranée.

Elviria Marbella

Propriétés similaires à vendre en Elviria et Marbella Est et Marbella (Toutes les zones)

Vous pourriez aussi aimer

Plus de propriétés à vendre en Elviria, Marbella Est, Marbella (Toutes les zones)

Découvrez les dernières propriétés arrivées sur le marché à marbella

Nouvelles listes