Elviria, Marbella East · W-0475C2

Build Your Dream Home – Plot with License and Modern Villa Project

€549,000 Request more information
Amenities and special features of this property

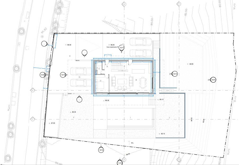
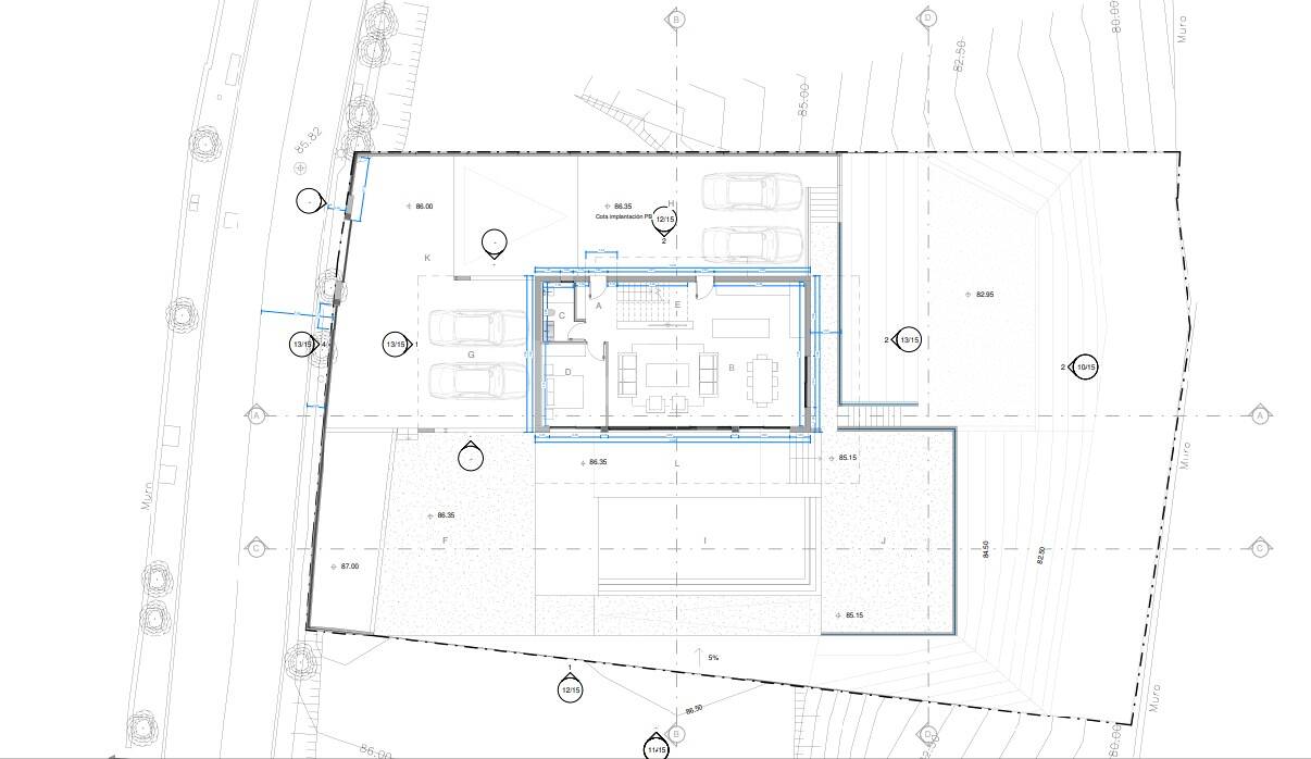
This 1,042 m² plot in the desirable residential area of Elviria offers a rare opportunity to build a spacious and modern home, complete with approved building license and project design. Set among natural surroundings with sea views, the plot provides a 25% buildability, allowing for over 200 m² of living space.

The current project designs 4-bedroom, 3-bathroom villa spans an impressive 208m² of living space on a generous 1042m² plot.
Designed with a contemporary and thoughtful approach, this 2-level property offers an optimized distribution of space, ensuring natural illumination and ventilation in every room. There’s a strong emphasis on efficient use of space and energy, leaving no room for wastage.
Upon entering the villa, you’re greeted by a spacious entrance hall featuring closets. This leads to the roomy living area, seamlessly connected to an open-plan kitchen with an integrated island. Large, energy-efficient windows stretch from floor to ceiling, providing direct access to the pool and garden. A guest toilet is also conveniently situated on the ground floor.

The living room on the ground floor is thoughtfully designed to make the most of the stunning Costa del Sol views, creating a captivating atmosphere.
The floating glass staircase takes you to the upper floor, where you’ll find two generous bedrooms with ample built-in storage, sharing a well-appointed bathroom. The master bedroom boasts an ensuite bathroom and a spacious walk-in closet.

Access the roof terrace directly from the first floor via a well-designed staircase. It comes pre-equipped for solar panels, reflecting modern sustainability practices.

This villa’s interior combines style, functionality, and eco-consciousness, offering a comfortable and luxurious living environment. Contact us for more details and to explore this exceptional property further.
The outdoor area is equally impressive, offering spacious covered terraces, a beautiful private pool, a landscaped garden, and your very own private parking space for two cars, seamlessly connected to the villa.

Additionally, there is an option to customize the project by adding a full basement with exciting possibilities, including a cinema room, game room, laundry room, separate kitchen, wine cellar, sauna, and the potential to create extra rooms if needed.

Listing Details

  • Mountain view
  • Panoramic view
  • Sea view

Sale price does not include costs or taxes. Additional costs for the buyer: inscription and notary fees, ITP 7% or, alternatively 10% VAT and AJD 1.2% on the purchase price) on new properties and subject to some requisites to be met. This info is subject to errors, omissions, modifications, prior sale or withdrawal from the market. Information sheet available, Decree 218/2005 Oct. 11th.

Get in touch for more details about this property
  • Plot 1,042 m²
Responsible Shop Engel & Völkers Elviria Get directions +34 952 83 55 80
Name Required
Email Required
Phone Required
Required field
Property Contact Image

Read more about the area

Elviria

Elviria is famous for its high-end properties, striking natural scenery, and beautiful beaches. The area boasts a range of luxury accommodation options, including villas, townhouses, and apartments, many of which offer stunning views of the Mediterranean Sea.
With its prime location, Elviria is a great choice for those looking for a second home or a place to relocate. It is conveniently situated near restaurants, bars, shops, essential facilities, splendid beaches and leisure activities, such as golf. This makes it an ideal Spanish resort destination with all the necessary components.

Similar Properties for sale in Elviria and Marbella East and Marbella (All areas)

You might also like

More properties for sale in Elviria, Marbella East, Marbella (All areas)

Discover the latest properties that have come on the market in marbella

New listings