Elviria, Marbella Wschodnia · W-0475C9

Nowoczesny projekt Villa na premierze

449 000 € Poproś o więcej informacji
Udogodnienia i cechy szczególne nieruchomości

Plat z gotowym projektem w Elvirii Marbella, oferujący wyjątkową okazję do zbudowania nowoczesnej willi, która doskonale łączy w sobie nowoczesny komfort, elegancję architektoniczną i życie na świeżym powietrzu śródziemnomorskim.

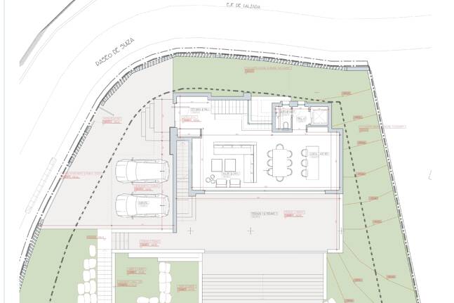
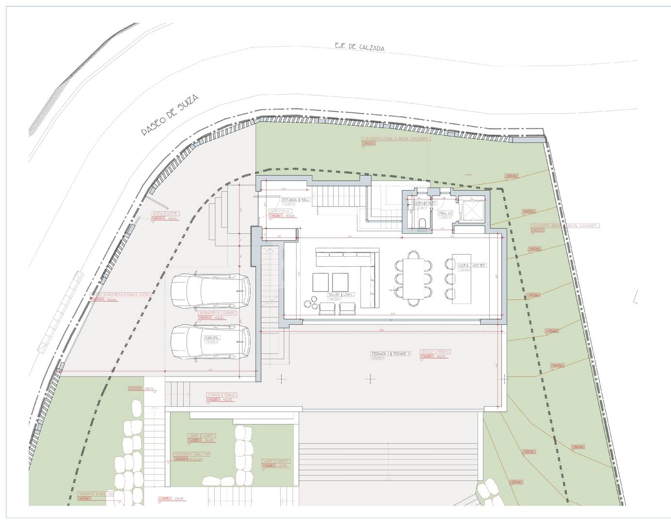
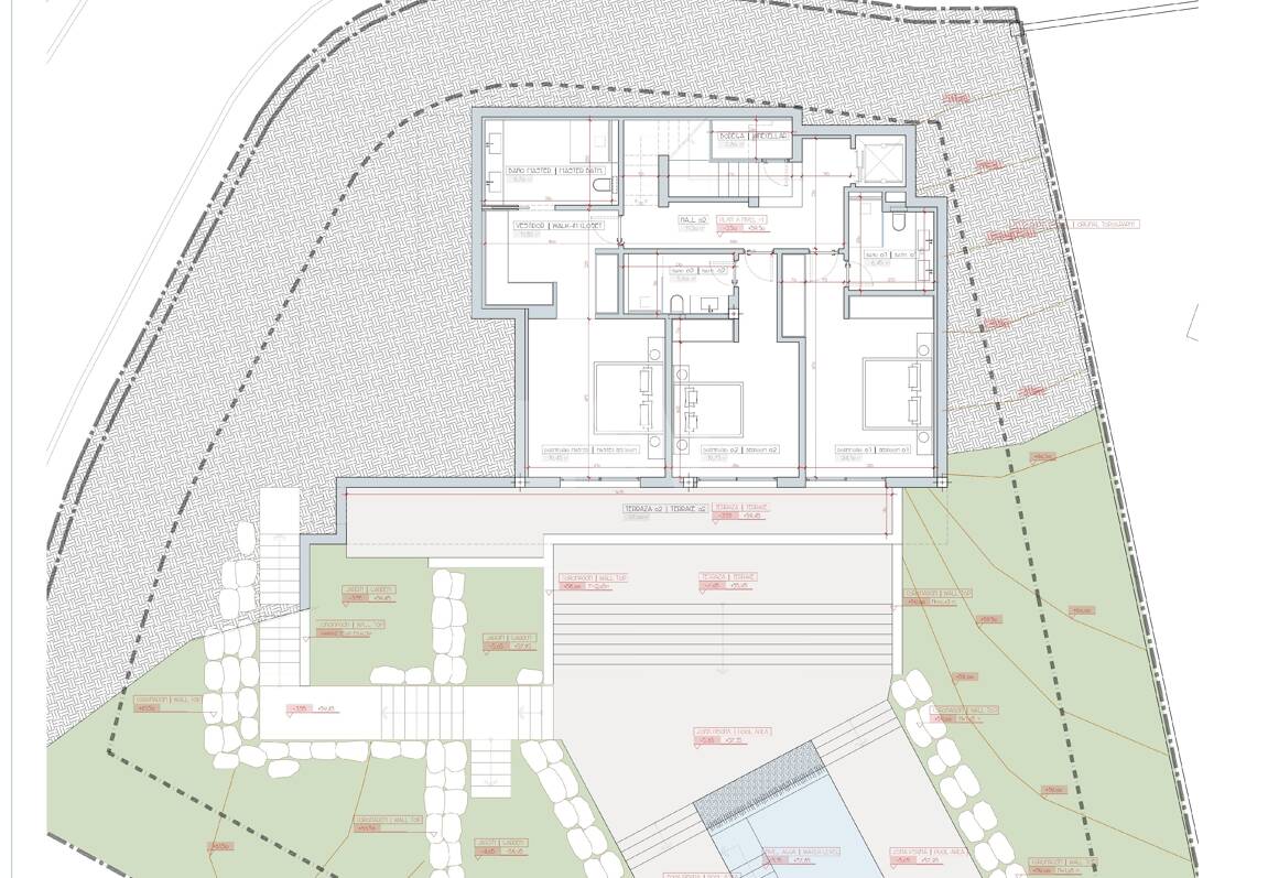
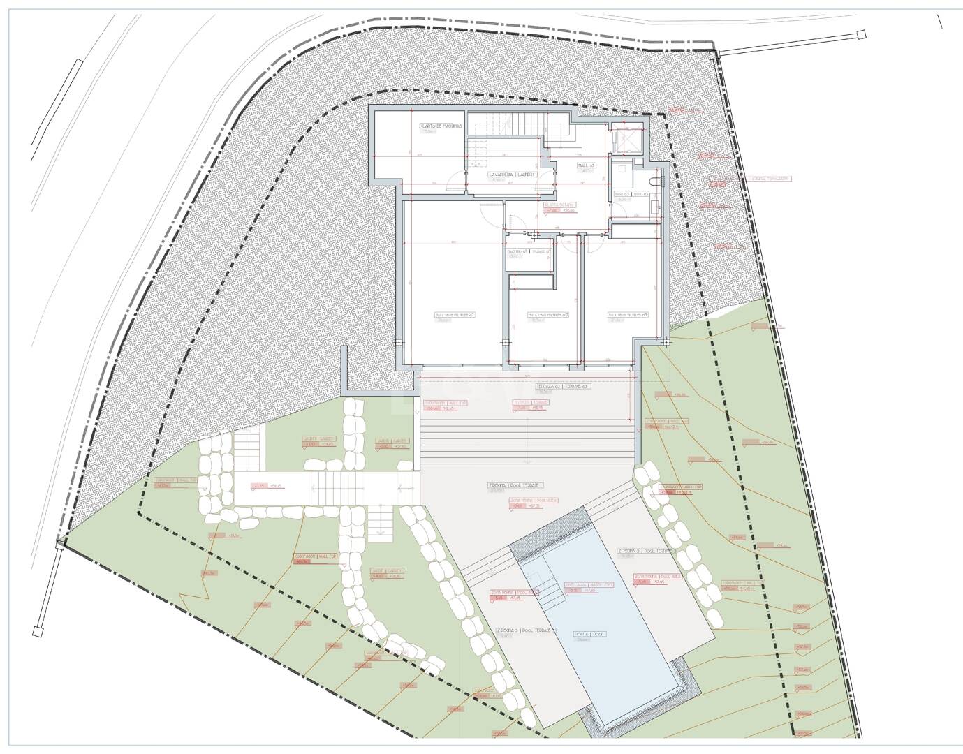
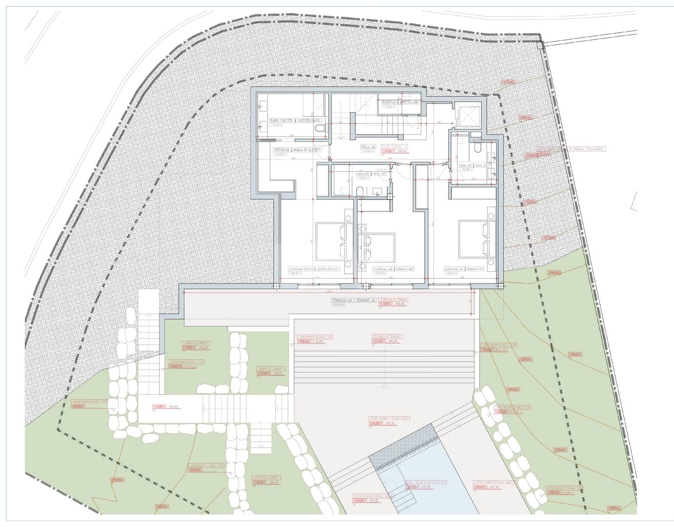
Ta wielopoziomowa rezydencja znajduje się w samym sercu Elvirii i jest zaprojektowana tak, aby płynnie mieścić się z jej naturalnym otoczeniem. Plac ma powierzchnię 1,127 m ², co pozwala na 420,17 m ² zamkniętej powierzchni, uzupełnionej o 369,21 m ² tarasów i 34,00 m ² basenów – idealne do słonecznego stylu życia Costa del Sol.

Główny salon na parterze otwiera się bezproblemowo na szerokie porty i ogrody krajobrazowe, tworząc płynne przejście między przestrzeniami wewnętrznymi i zewnętrznymi. Poziom solarium oferuje open-air rekolekcje z panoramicznym widokiem, podczas gdy niższe poziomy obejmują dodatkowe przestrzenie mieszkalne i rekreacyjne, z tarasami i prywatnym basenem, które podkreślają silne połączenie z naturą.

W sumie, rezydencja osiąga 453.57 m ² powierzchni konstrukcyjnej, pokazując współczesną architekturę, która równoważy elegancję, funkcjonalność i doskonałą lokalizację w jednym z najbardziej pożądanych obszarów mieszkalnych Elviria.

Ta działka z projektem w Elvirii również cieszy się niepokonaną lokalizacją – zaledwie 4 minuty jazdy od centrum handlowego Elviria, gdzie sklepy, restauracje i usługi są blisko. Kiedy nadszedł czas, aby cieszyć się śródziemnomorską linią brzegową, plaża znajduje się zaledwie 6 minut, oferując łatwą ucieczkę do opalania i relaksu nad morzem.

Rzadka okazja do zbudowania wymarzonego domu w jednym z najbardziej wysuniętych miejsc Marbella East – skontaktuj się z nami dzisiaj, aby uzyskać więcej informacji na temat tej wyjątkowej fabuły i projektu.

Skontaktuj się z nami, aby uzyskać więcej informacji na temat tej nieruchomości
  • Działka 1 127 m²
Odpowiedzialny sklep Engel & Völkers Elviria Uzyskaj wskazówki dojazdu +34 952 83 55 80
Wymagana nazwa
Wymagany e-mail
Wymagany telefon
Wymagane pole
Property Contact Image

Więcej informacji o okolicy

Elviria

Elviria słynie z wysokiej klasy nieruchomości, uderzającej naturalnej scenerii i pięknych plaż. Obszar ten oferuje szereg luksusowych opcji zakwaterowania, w tym wille, kamienice i apartamenty, z których wiele oferuje wspaniałe widoki na Morze Śródziemne.
Dzięki doskonałej lokalizacji Elviria jest doskonałym wyborem dla osób szukających drugiego domu lub miejsca do przeprowadzki. Jest dogodnie położony w pobliżu restauracji, barów, sklepów, niezbędnych udogodnień, wspaniałych plaż i zajęć rekreacyjnych, takich jak golf. To sprawia, że jest to idealny hiszpański kurort ze wszystkimi niezbędnymi elementami.

Podobne nieruchomości na sprzedaż w Elviria oraz Marbella Wschodnia oraz Marbella (Wszystkie obszary)

Możesz także polubić

Więcej nieruchomości na sprzedaż w Elviria, Marbella Wschodnia, Marbella (Wszystkie obszary)

Odkryj najnowsze nieruchomości, które pojawiły się na rynku w marbelli

Nowe oferty