Elviria, Marbella East · W-0475C9

Modern Villa Project on a Prime Plot

€449,000 Request more information
Amenities and special features of this property

Plot with ready project in Elviria Marbella, offering an exceptional opportunity to build a contemporary villa that perfectly combines modern comfort, architectural elegance, and outdoor Mediterranean living.

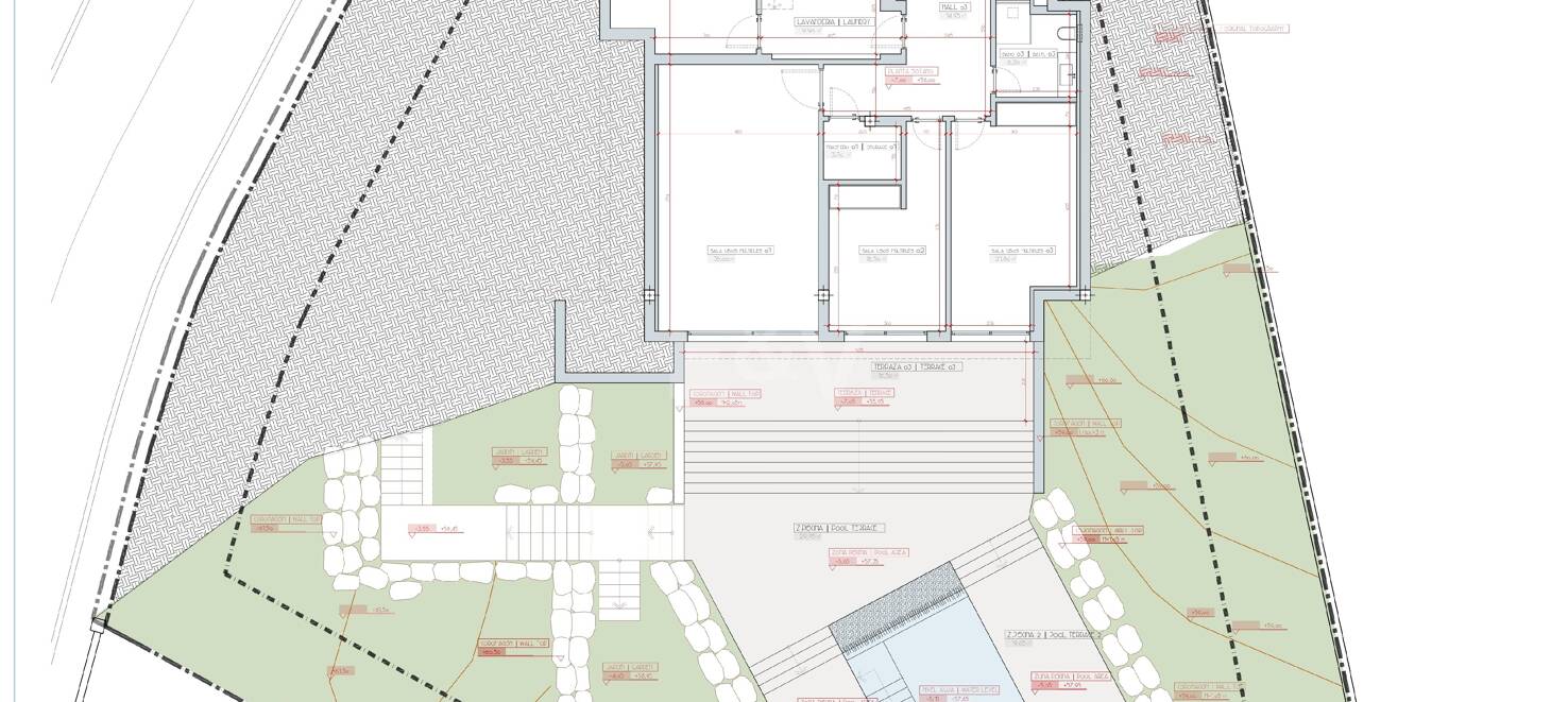
Set in the heart of Elviria, this multi-level residence is designed to blend seamlessly with its natural surroundings. The plot measures 1,127 m² with a buildability of 20%, allowing for a 420.17 m² enclosed built area, complemented by 369.21 m² of terraces and 34.00 m² of pools — ideal for embracing the sunny Costa del Sol lifestyle.

The main living area on the ground floor opens effortlessly onto wide porches and landscaped gardens, creating a smooth transition between indoor and outdoor spaces. The solarium level offers an open-air retreat with panoramic views, while the lower levels include additional living and leisure spaces, featuring terraces and a private pool that emphasize a strong connection to nature.

In total, the residence achieves 453.57 m² of constructed surface, showcasing a contemporary architectural design that balances elegance, functionality, and a prime location in one of Elviria’s most desirable residential areas.

This plot with project in Elviria also enjoys an unbeatable location — only a 4-minute drive from Elviria’s commercial center, where shops, restaurants, and services are close at hand. When it’s time to enjoy the Mediterranean coastline, the beach is just 6 minutes away, offering an easy escape for sunbathing and relaxation by the sea.

A rare opportunity to build your dream home in one of Marbella East’s most sought-after locations — contact us today for more information about this exceptional plot and project.

Get in touch for more details about this property
  • Plot 1,127 m²
Responsible Shop Engel & Völkers Golden Mile Get directions +34 952 86 84 06
Name Required
Email Required
Phone Required
Required field
Property Contact Image

Read more about the area

Elviria

Elviria is famous for its high-end properties, striking natural scenery, and beautiful beaches. The area boasts a range of luxury accommodation options, including villas, townhouses, and apartments, many of which offer stunning views of the Mediterranean Sea.
With its prime location, Elviria is a great choice for those looking for a second home or a place to relocate. It is conveniently situated near restaurants, bars, shops, essential facilities, splendid beaches and leisure activities, such as golf. This makes it an ideal Spanish resort destination with all the necessary components.

Similar Properties for sale in Elviria and Marbella East and Marbella (All areas)

You might also like

More properties for sale in Elviria, Marbella East, Marbella (All areas)

Discover the latest properties that have come on the market in marbella

New listings